Luxury bungalow
A spacious loft-style bungalow with almost half the walls made of glass - that's pure luxury! It's a wonderful combination of interior spaciousness, while living very close to nature. The entrance welcomes you to a spacious hall, where a niche has a guest WC and an area for storing jackets, boots and shoes.
*Photo shows building with individual changes.

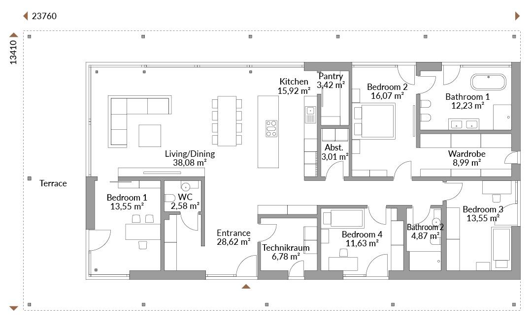
Floor plans
Complete plan of all floors with area






Friends and family think it’s a beautiful house. We’re very lucky to have such a beautiful home to share with our grandchildren and family. Yes, it’s our forever home, definitely.